
I. General Application of XSG Flash Dryer
Rotary flash dryer is a new high efficient fluidized drying equipment that we designed for solve the static drying's low efficiency and high consumption problem. When designing the equipment, we combined the features of air stream drying and fluidized drying together. So the machine has reasonable structure and good performance, it really achieves the aim of low consumption and high efficiency of fluidizing drying.
This machine has a wide application scope, it can be used for drying in fire retardant, molecular sieve, rubber and plastic assistance, pesticide, pigment, dyestuff, fine chemicals, feedstuff, pharmaceutical and part intermediate industries.
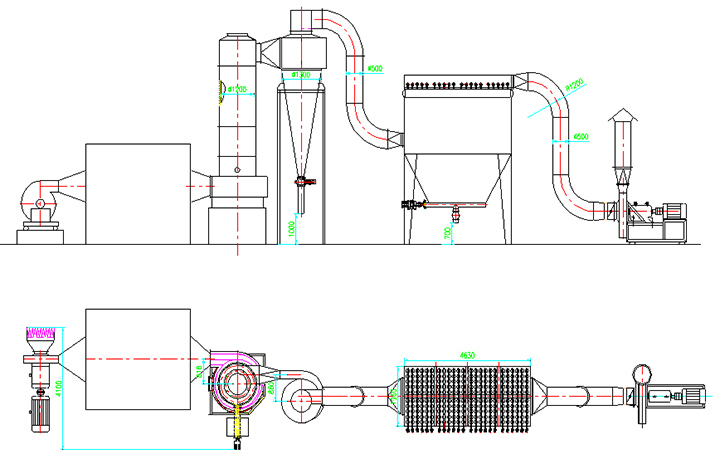
Hot air enters into stirring, crushing and drying chamber in a certain speed from the air inlet that at the bottom of dryer and producers vigorous eddy airflow. Material is acted by centrifugal force, shearing force, impacting and friction, the particle size of material becomes very small and mass and heat transmission is strengthened. At the bottom of dryer, big damp granules is crushed, small and low moisture content granules rise with the rotation air stream. During the rising process, the granules are dried further. Because of the rotary flow of air and solid, inertia of solid phase is higher than gaseous phase, the relative speed of air and solid is big, it strengthens mass and heat transmission, so drying intensity is high.

II. Features of XSG Flash Dryer
1. Several feeding device can be chose, feeding is continuous and stable, no phenomenon of bridging.
There is special cooling device at the bottom of dryer, it can avoid the material that in the bottom high temperature area be bad.
There is special air sealing device and cooling device for bearing, it can make the life of transmission part longer effectively.
There is special air distributing device, it can reduce the resistance of equipment, and make the air speed in drying tower because balance.
There is classify ring and turbojet plate, the fineness and final moisture of product can adjusted and controlled.
Circumference air speed in the drying tower is high, the residence time of material is short, it can avoid the material stick on the wall and thermal sensitive materials so bad.
III. Application scope
Organics: Atrazine (pesticides),lauric acid cadmium benzoic acid, sodium oxalate, sterilization Dan, cellulose acetate, organic pigments, etc
Dyestuff : Anthraquinones, black iron oxide, indigo dye, butyrate, titanium oxide, zinc sulfide, various azo dye intermediates
Inorganic substance: Borax, calcium carbonate, hydrogen peroxide, copper sulfate, ferric oxide, TanSuanBei, three antimony oxide, all kinds of metal salt,synthetic cryolite etc.
Food: Soybean protein, gelatinized starch, vinasse, triticum, wheat starch.
IV. Technical parameters
| Model | Inner diameter (mm) | Air volume(m3/h) | Water evaporation (kg/h) | Install power (Kw) | Max. height (m) | Occupied area (m2) |
| XSG-4 | 400 | 2100 | 60 | 25 | 4.6 | 19 |
| XSG-6 | 600 | 4500 | 130 | 37 | 5.5 | 26 |
| XSG-8 | 800 | 7500 | 240 | 48 | 6.0 | 34 |
| XSG-10 | 1000 | 12000 | 400 | 75 | 6.5 | 45 |
| XSG-12 | 1200 | 18000 | 610 | 85 | 7.0 | 58 |
| XSG-14 | 1400 | 24000 | 800 | 98 | 7.8 | 76 |
| XSG-16 | 1600 | 30000 | 1000 | 135 | 8.5 | 110 |
| XSG-20 | 1800 | 40000 | 1300 | 215 | 9.2 | 150 |


V. Machine photos


Q:Do you have factories?
A:Yes,we have factories in Changzhou City on drying machine.
Q:How is the progress for an new order?
A:1) we will provide pre-sale service, it is free.Just contact us ,and tell us what you want to dry, and capacity you need and some necessary conditions, our sales and technical people will give the best suggestion for you.
2) Once you have confirm,or if you like, welcome to visit our factories.You can sign the contact with us, and pay deposit.
3)After deposit, we will send you the drawing of each part, and confirm with you.If okay, we begin producing.
4)When completed, we will send the picture or video to you for confirmation.Or you can come to check.If all okay,payment of balance will be needed.
5)We send the machine and you will get the machine soon.
China