Product Application
Beer brewing equipments mainly used in small breweries, hotel ,bar and laboratory brewery and other areas ,with the main products of beer brewing equipment, beer and beverage filling equipment and water treatment equipment.
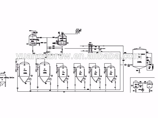
| Beer brewing production system | |||
| Mash system | Malt Miller machine | Stainless steel | 150kg/hour |
| Mash tun& lauter tank | SUS 304 | 200L | |
| Boiling tank & whirlpool tank | SUS 304 | 200L | |
| Fermentation System | Beer fermenters | SUS 304 | 400L |
| Chiller machine | Refrigerant: R134a or R404a | 3P | |
| Glycol ice water tank | SUS 304 | 800 L | |
| Necessary brewing system | CIP washing machine | Disinfection/ Alkali | 100L |
| Control system | temperature and pressure | PLC | |
| Beer filling machine | Keg/bottle/can fill | 30L-60L kegs |



Main Features
1. High standard :All stainless steel 304 materials; Inner and outer of the tanks full polished. Double jacket .
2. Quality Control: Water testing, pressure testing after production .CE / UL/ ISO certification.
3. Free installation and training. Our technical engineers can go to your place for installation at site .
4. Strong Professional technician team are available to solve your problems at anytime.

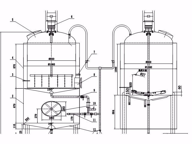
Machine Parts
Mash tank
Mash/lauter tank + whirpool/kettle
Choice 1 Electric heating :
The electric heating ways are widely used in less than 500L beer equipments in bars/hotel and small rooms . This kind is clean and easy for operation .
Choice 2 Steam heating
The steam heating need a boiler/generator machine,
This kind heating is evenly and fast, also easy to control temperature, so this kind are widely used in big brewery plant ,it can also save the electric energy ,as you can choose different kinds of energy ,such as oil / gas.
Main Features
Beer fermenter
1. Interior Shell SUS304 full welded; all polishing; Thickness=3mm
2. Exterior Shell SUS304 full welded;all polishing; Thickness=2mm
3. Insulation Polyurethane; Thickness=80mm
Glycol Jacket Dimple plate on cone and body
4.Head and Bottom Dished head and 60/70 degree cone bottom
5. Complete Valves Sampling valve; Beer outlet valves ;
Safe valve ; Mechanical relief valve ; butterfly valve for port



Pre-Sales Service
* Design different kinds of drawing based your requirements.
* Inquiry and consulting support.
* Any questions will be replied within 24 hours by our people.
After-Sales Service
* Connection drawing for your install
* Training how to instal the machine, training how to use the machine.
* Engineers available to service machinery overseas.s.

| Packaging | |
| Size | 20ft container or 40ft container |
| Weight | 2000kg- 6000kg |
| Packaging Details | We adopt international wooded package or steel frame package based on your requirement , also the quantity of your tanks. |



91.8% Response Rate
91.8% Response Rate
91.8% Response Rate
China